error !
Реконструкция коттеджа
Описание
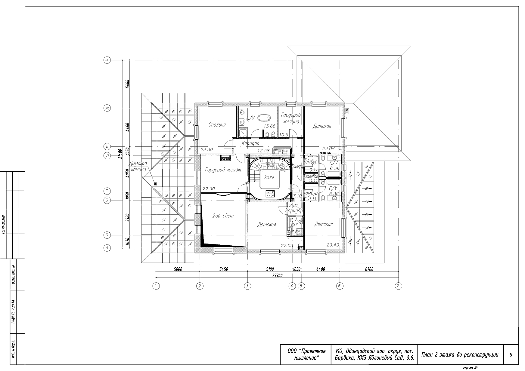
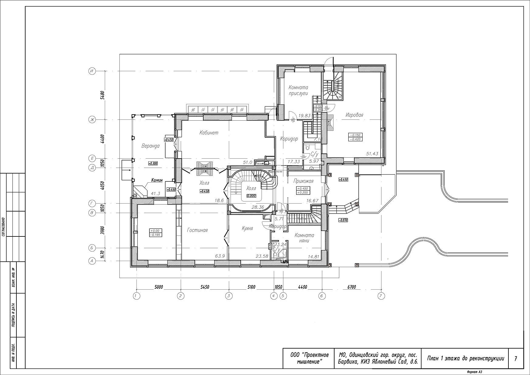
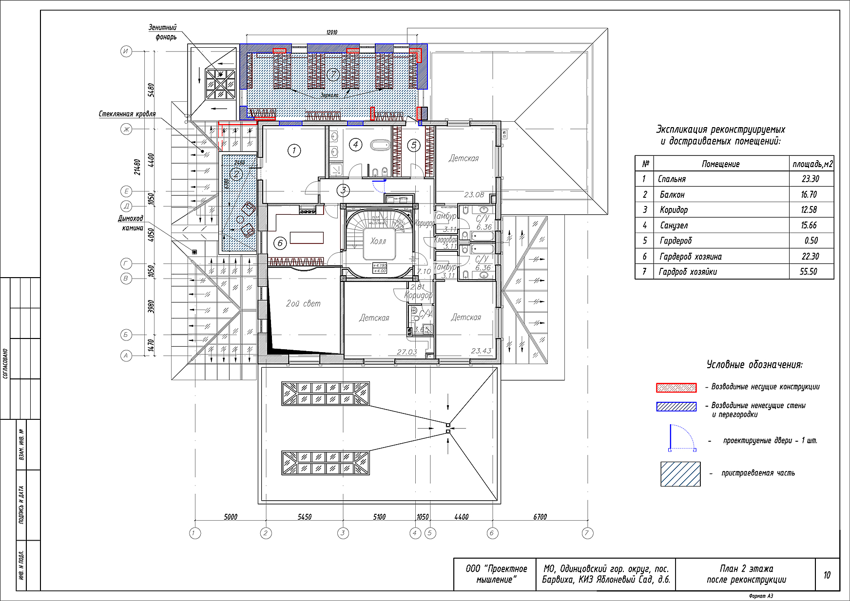
Проектные предложения по реконструкции и расширению элитного коттеджа постройки 60-х годов по адресу:
МО, Одинцовский городской округ, пос. Барвиха, КИЗ "Яблоневый сад", д.6
Проектные предложения по реконструкции и расширению элитного коттеджа постройки 60-х годов по адресу:
МО, Одинцовский городской округ, пос. Барвиха, КИЗ "Яблоневый сад", д.6